
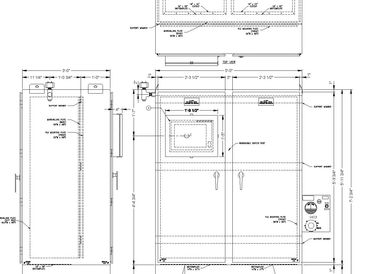
I offer professional 2D control panel and enclosure layout drawing services in Louisiana, providing accurate back‑plate layouts, door layouts, cutout details, and component placement drawings for automation and electrical projects. Based in the Lafayette and Acadiana area, I deliver clean, precise CAD layouts that help panel shops, electr
I offer professional 2D control panel and enclosure layout drawing services in Louisiana, providing accurate back‑plate layouts, door layouts, cutout details, and component placement drawings for automation and electrical projects. Based in the Lafayette and Acadiana area, I deliver clean, precise CAD layouts that help panel shops, electricians, and integrators build reliable, code‑compliant control panels with confidence

I offer professional patent drawings that clearly show how your invention works and meet all required patent office guidelines. My drawings are clean, accurate, and easy for examiners to interpret, helping you avoid rejections and delays. I can turn your sketches, prototypes, or CAD models into patent‑ready illustrations.
I offer professional 2D detail drawing services in Louisiana, providing accurate mechanical, architectural, and construction details for contractors, engineers, and fabricators. My CAD‑based detail drawings include sections, elevations, connection details, weld details, and custom components — all drafted with precise dimensions and clear
I offer professional 2D detail drawing services in Louisiana, providing accurate mechanical, architectural, and construction details for contractors, engineers, and fabricators. My CAD‑based detail drawings include sections, elevations, connection details, weld details, and custom components — all drafted with precise dimensions and clear annotations. Based in the Lafayette and Acadiana area, I deliver clean, reliable drawings that help ensure your project is built correctly and efficiently