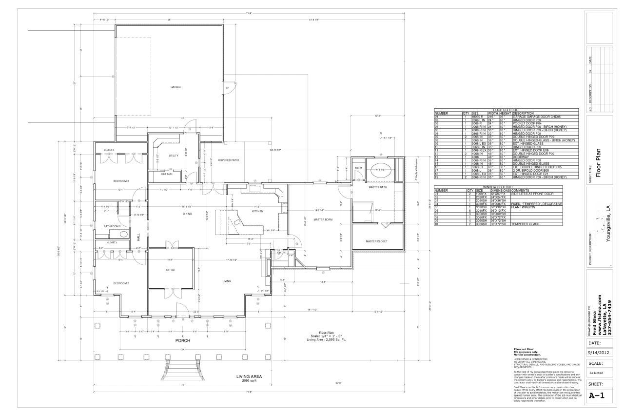
Architectural floor plan of a single‑story home featuring a large front porch, three bedrooms, and a spacious private master suite. The master bath includes a garden tub and separate tiled shower. The open‑concept living room connects to the kitchen with an extended countertop seating area, alongside a dedicated dining room. The foyer leads to a private office, and the utility room includes a half bath. The layout also shows a double garage and a covered rear patio.




SUMMARY:
DETAILS:
FEATURES:
DELIVERABLES: