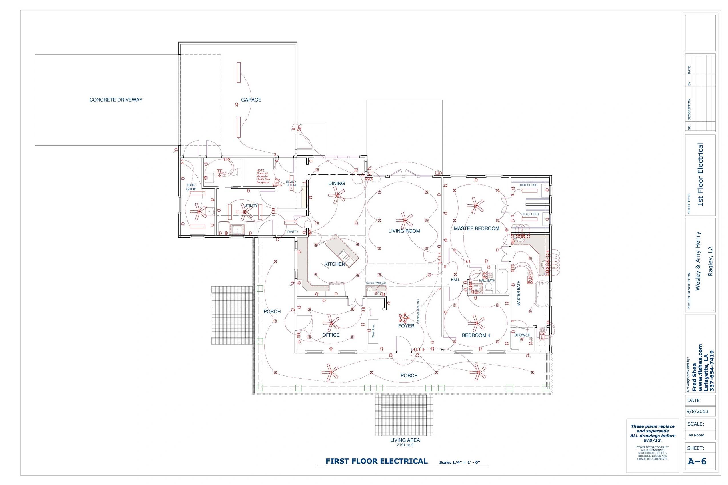
Two‑story country home floor plan featuring a spacious open‑concept kitchen and living area, downstairs master suite with large bath and closet, guest bedroom, and dedicated office. Upper level includes two bedrooms, a playroom, and a separate staircase leading to a game room above the two‑car garage. Includes utility and mud room for functional family living.





SUMMARY:
This project includes a full residential floor plan with open living, private master suite, and covered patio.
DETAILS:
Type: Residential
Includes: "Advanced" Rendered View, Floor Plan, Elevations, Roof Plan, Door & Window Schedules
Software: Chief Architect X12
Formats: PDF
FEATURES:
Feature 1: Open living and kitchen layout
Feature 2: Large front porch
DELIVERABLES:
PDF Set: Yes